Ваш регион:
0

+7 (800) 350-85-65*

*Звонок по РФ бесплатный

info+ivanovo@unilos-astra.com

создаем гармонию

Астра 250

Выгодная цена: 2 665 175 руб. -15%

Цена: по запросу

Акция!
Цена под ключ: Посмотреть смету

В корзину
Астра 250

Технические характеристики Астра 250

Количество пользователей: 250

Залповый сброс: 4600 л

Объем переработки: 50 м3/сут

Насос для откачки: нет (самотечный сброс)

Глубина врезки подвод. магистрали: 45 - 85 см

Глубина залегания: 85 см

Высота: 2.33 м

Длина: 3.5 м

Ширина: 2.16 м

Вес: 4340 кг

человек х250

Наши услуги

Замер и смета

Замер и смета

Доставка

Доставка

Монтаж и запуск

Монтаж и запуск

Обслуживание и ремонт

Обслуживание
и ремонт

Консервация на зиму

Консервация на зиму

48 часов от звонка до установки

48 часов от звонка
до установки

Подробнее об Астра 250

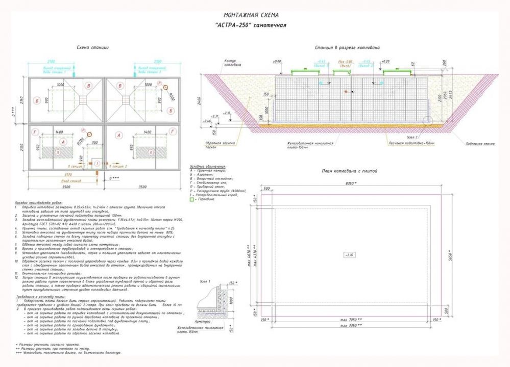
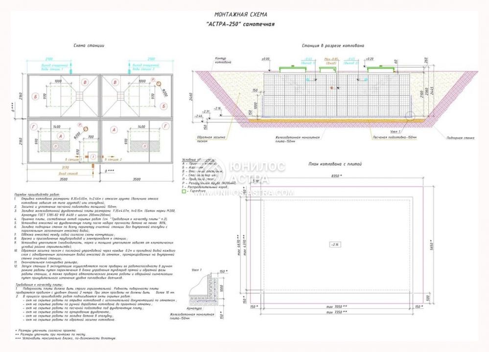
Монтажные схемы Астра 250

Почему выбирают нашу компанию?

10 лет гарантии

Работаем без предоплаты

Оплата за септик/автономную канализацию - при получении.

Не бросим Вас после продажи

Вот уже 11 лет мы не только ставим септики, но и обслуживаем их. Знаем станции вдоль и поперек. Как они устроены и чего от них ждать. Многие "установщики" вообще не понимают, что продают и как оно будет дальше работать.

Экономим Вам деньги

Мы работаем БЕЗ наценок на продукцию.

Делаем дополнительные работы

Вам требуется что-то ещё? Занимаемся также: подводом воды, дренажом, ливневкой, водопроводом, отоплением и другими строительными работами.

Наши менеджеры помогут быстро и правильно подобрать оптимальный вариант септика

Сертификаты и экспертное заключение

Выполненные монтажи

Видеогалерея

Остались вопросы или нужна консультация? Наши менеджеры с радостью помогут Вам

Как мы работаем

Оформление заявки

Бесплатный выезд инженера

Согласование плана и подписание договора

Проведение монтажных работ

Отличный результат